Das Karlsruher Institut für Technologie beteiligte sich erstmalig mit dem Projekt „RoofKIT“ an dem internationalen studentischen Wettbewerb „Solar Decathlon Europe 21/22“, der im Juni 2022 zum ersten Mal in Deutschland (Wuppertal) ausgetragen wurde. Der Beitrag, der als Gesamtsieger aus dem Wettbewerb hervor ging, wurde als Aufstockung eines bestehenden Gebäudes aus dem 19. Jahrhundert konzipiert und zeigt eine Vision für das Bauwesen des 21. Jahrhunderts.
Das Leuchtturmprojekt verdeutlicht in Zeiten des Klimawandels und der Ressourcenknappheit wie die gebaute Umwelt neben ihrem traditionellen Verständnis von Schönheit, Langlebigkeit und Funktionalität, auch eine immer grösser werdende Verantwortung gegenüber der Gesellschaft hat. Dies erfordert einen Bewusstseinswechsel in der Art und Weise, wie wir Gebäude verstehen und konstruieren. Weg von linearen und temporären Lösungen, hin zu einem endlosen und zirkulären Ansatz. Wir müssen unsere Abfallproduktion aufgeben und eine Ebene der Verantwortung erreichen, auf der Gebäude zu Produzenten erneuerbarer Energien und Materiallager der Zukunft werden.





Rolle im Team
Der SDE wird in 10 Wettbewerben bewertet. Als Teamleitung für den CESA Contest („communication, education and social awareness“) organisierte und leitete ich die hauptsächliche Kommunikation des Projekts im Team. Auf unterschiedlichen Plattformen Präsenz zu zeigen, entsprechenden Content für unterschiedliche Zielgruppen zu produzieren und parallel die Organisation der Event Phase vor Ort waren einige der Aufgaben, die es zu bewältigen gab. Weiter ging es um Pressekontakte, Veröffentlichungen, Bildungsaufträge und Ausstellungsplanung – damit das Projekt Reichweite bekommt.



Projekt
Wenn Architekten, Ingenieure, Wissenschaftler, Designer und Planer die Verantwortung für unseren Planeten und die auf ihm lebenden zukünftigen Generationen übernehmen wollen, müssen wir im Einklang mit unseren existierenden natürlichen Kreisläufen entwerfen und das Bauen als integralen sozialen Ansatz verstehen.
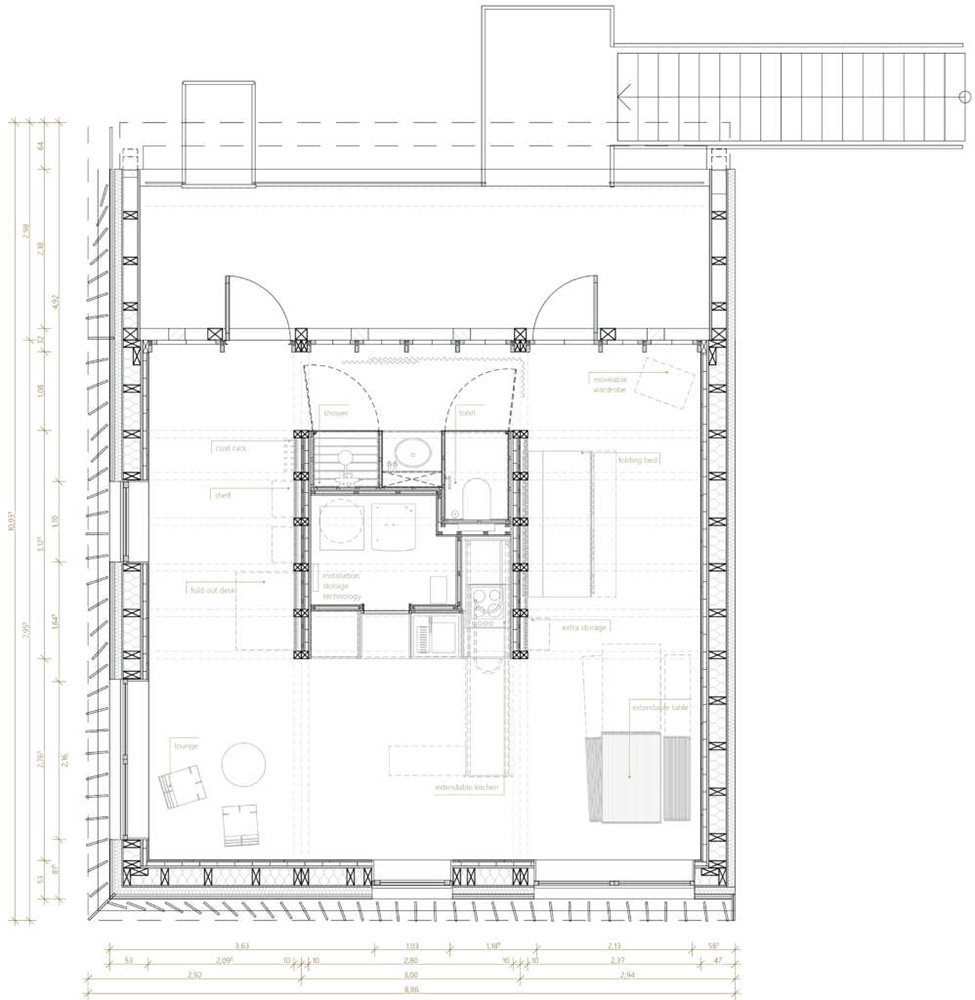
Das Einzigartige am Solar Decathlon-Wettbewerb ist, dass neben einem Gesamtentwurf für ein größeres architektonisches Projekt ein charakteristischer Gebäudeteil als Demonstrationsobjekt in Originalgröße im Maßstab 1:1 gebaut und begutachtet wird. Seit 2020 haben mehr als 100 Studierende des KIT in verschiedenen Fakultäten und unter der Leitung der Lehrstühle für Nachhaltiges Bauen (Prof. Dirk E. Hebel) und Gebäudetechnik (Prof. Andreas Wagner) an dem Projekt gearbeitet, was im Mai und Juni 2022 in Wuppertal in den Bau der sogenannten „House Demonstration Unit“ mündete.
© RoofKIT
Konzipiert als vorgefertigtes Modulsystem in 100% kreislauffähiger Bauweise beweist die Einheit schon heute, dass mit aktueller Technologie und Entwurfskapazitäten die Anforderungen des European Green Deal zur Kreislaufwirtschaft im Bauwesen zu erfüllen. Es wurden keine Klebstoffe, keine Imprägnierungen oder Farben, keine Schäume oder Nassabdichtungen verwendet, so dass die Kreislauffähigkeit der Materialien zu 100% gewährleistet bleibt. Außerdem wurden für die Konstruktion nur Monomaterialien verwendet, das heißt, es sind keine Verbundstoffe oder Materialmischungen verbaut. Viele Bauteile und Materialien wurden bereits aus der städtischen Miene entnommen und im zweiten, dritten oder gar vierten Kreislauf verwendet: Holz aus alten Scheunen im Schwarzwald, die Eingangstür aus einem Gebäude aus dem 19. Jahrhundert, Fenster aus einem abgerissenen Gebäude in Basel, Bad- und Küchenarmaturen aus Messe-Rückbauten. RoofKIT enthält auch Materialien, die rekonfiguriert wurden, d.h. das Material wurde recycelt, während die Form des ehemaligen Produkts verändert wurde. RoofKIT ist schon heute ein Leuchtturm-Projekt für ein zukünftige zirkuläre Baukultur und Industrie.







